 
                        融湖盛景花园内部福利(01)群(435)
 
        
                         
                        大盘、低密度、高实用率,
都是美好生活的必备品

(融湖盛景花园效果图)
在阐述什么样的产品才更宜居前,呆呆刚好有两个最近的故事分享下:
1、几个月前,呆呆陪一位朋友去关外看房。住在市区老小区的她,看了一圈关外新房后最大的感慨是,深圳宜居的新盘越来越少了,连关外的房子,大多都是超高层住宅了;
2、另外一位朋友去坪山一个楼盘看房,还没进售楼处掉头就走了,说周边完全没看到配套,等待成熟的时间太长。
朋友们说的都是目前楼市现实,深圳土地资源少,超高层越来越多,好配套的地块也越来越少。但是,这些痛点恰好就是融湖盛景花园目前的优势,作为一个持续开发了10年以上的百万平大盘,有着舒适的密度和成熟的生活配套,而且,项目的一些指标今天已经不多见,例如:
…………3.97…………
这是融湖盛景花园的容积率,容积率数字是越低越舒适,3.97不算最低,但是在目前的楼市,估计能超越了深圳约90%的盘。
低容积率给融湖盛景花园业主带来的好处就是:开阔舒适的楼间距、大园林、房间视野通透、采光优秀。

(融湖盛景花园效果图)
…………约41000…………
面积约4.1万平,有时候是一个项目的总建筑面积,在融湖盛景花园,这只是这一期园林的面积。

(更多园林空间,效果图)
一个面积约4.1万平的园林,意味着什么呢?
1、孩子们可以拥有一个私家花园,一个自由奔跑的空间,一个开心的成长空间,一个充满快乐的童年;
2、大园林可以设计更多活动空间,融湖盛景花园园林里有舒适的泳池、孩子全龄活动空间以及大人的运动空间,业主可以在里面休闲娱乐,让身心得到休憩。
…………约81%+100…………
约81%,是融湖盛景花园的实用率;100,是楼体的总高度低于100米。
约81%这个数据当然不是最高,但是横向看一下深圳目前新增供应的产品,就优势明显,现在市场主要供应超高层,大部分超高层的实用率都无法超过75%,有个别的,不到70%。
对购房者来说,买实用率高的盘,意味着一样的钱,可以得到更多面积。
其次,融湖盛景花园的建筑高度低于100米,30来层的高层建筑,不是超高层,会更舒适。

(项目效果图)
精装修+户户朝南,
建筑外立面和装修还进行了升级
一个好的居住产品,好户型也必不可少,恰好,融湖盛景花园也做得很好。
优秀的户型设计,是从户户朝南开始的。
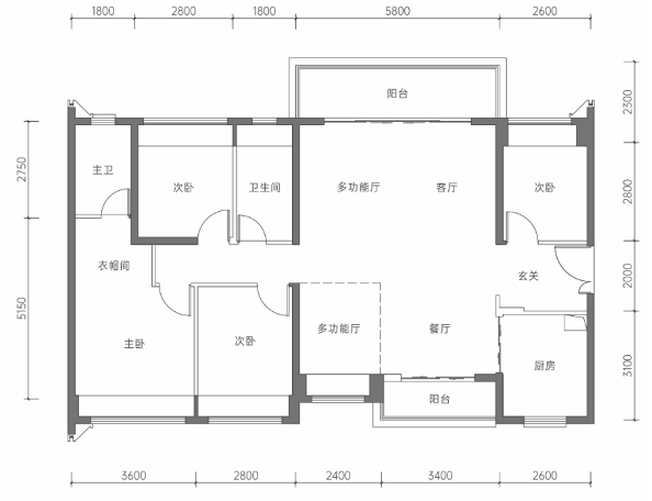
此次融湖盛景花园拿证的产品,主力户型为建面约95-143平的阔景3-4房,户户朝南。例如上一批产品最热销的建面约95平的户型,三开间都朝南,客厅开间可达到3.45米,主卧开间能达到3.15米。
上次去项目售楼处,销售给算了一下,建面约95平的这种户型,如果和实用率75%的超高层比,套内面积可以多出来6.6平,以融湖盛景花园这次4.7万/平的价格来计算,一样的面积,如果买融湖盛景花园就相当于赚了20多万元。
对刚需来说,20多万可是很大一笔钱。怪不得上一批这个户型会热销。

(建面约95平的户型图)
建面约95平已经可以赚这么多,其他如建面约111-113-130-143平的户型,买了自然是赚更多。
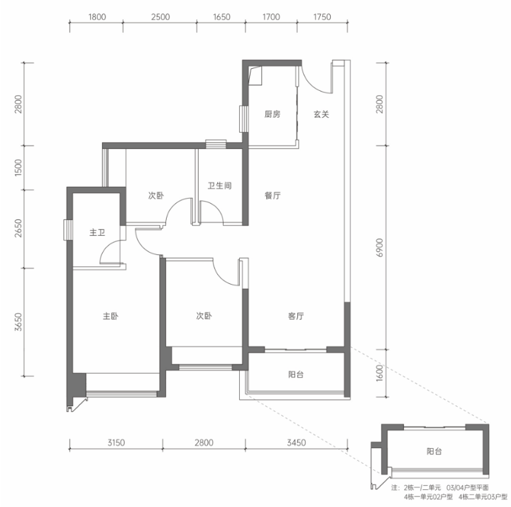
必须要提的是,这次融湖盛景花园的户型,还有平湖这几年完全没有出现过的建面约143平的四房四厅两卫户型,这种户型位于楼王座C位,楼间距约74.5米,南北通透,视野无遮挡,南北双阳台设计,可以看无敌园林,客餐厅开间宽5.8米,进深7.3米,整个客餐厅面积高达42.3平,一些超高层建面约200平的客餐厅面积都没这么大。

(建面约143平的户型图)
为了匹配这个户型的舒适和阔绰的定位,融湖盛景花园在这个户型的精装修上还进行了升级。

(样板展示空间,实景图)
产品全面升级,其实也是融湖盛景花园的一个特点,这个升级,其实是从建筑设计到精装修配置都有的。
融湖盛景花园属于融湖中心城的最后一期住宅,前面三期住宅都已经入伙。开发商在这一期不仅保留三期升级后的现代化立面,这次外立面还采用铝板线条做造型、双层LOW-E空中玻璃等设计,让整个外立面呈现公建化的现代风格,可直接媲美豪宅立面,可见开发商对这个产品的定位也很高。

(外立面很现代,效果图)
在产品的精装修交付上,为了符合平湖未来对高端产品的需求,开发商针对建面约143平的户型交付做了精装升级。

(阔绰的餐厅空间,实景图)
据悉,这次融湖盛景花园的交付,交付标准在同类价格的盘里已经不错,例如入户门就是宝盾双层钢木复合门,搭配三星“四合一”智能门锁,厨房电器是老板牌三件套,洗手间是TOTO卫浴,房间内的空调是隐藏式空调,客厅踢脚线是不锈钢的等等。

(大户型的厨房交付标准,实景图)
建面约143平的户型,则有更多有品质感的交付标准,例如:
1、配置了2.4米超长定制玄关柜,打造超强八重收纳体系,满足家庭收纳的各种需求;
2、厨房电器的老板牌三件套的消毒柜改为老板洗消一体机,这样的配置只有豪宅才会有;
3、主卧有独立的大衣帽间和多重收纳的衣柜;
……
产品的升级后的融湖盛景花园,必定是平湖改善的天花板盘。
因为融湖,
所以平湖有了居住的中心
在买房逻辑上,一般的原则是:买核心区域的核心产品。
如果因为价格和工作不能买城市的核心区域,那就尽量买自己所在区域中心的标杆盘,能成为居住的标杆盘,一定有它的优势和能力。
融湖盛景花园就是后一种,平湖绝对的居住标杆盘。
你现在开车去平湖,会发现有大量旧改的平湖城市面貌还有待改善,但是走到融湖中心城的时候,眼前会突然一亮,这里完全是一个现代化的生活区域,特别靠近路边的封面作品——四期的一幢办公楼和建面约6万平的商业中心,非常现代有标志性。

(办公楼和商业外立面都已经做好)
呆呆在整个社区走了下,发现整个项目是由几个地块组成,每一块都当成一期开发,所以这个项目组成了一个居住大社区,难得的是,开发商把每一期的建筑都往后退,留出了很宽阔的人行广场,也就有了一个舒适的公共步行空间和开阔舒适的视野,这点上,开发商是有前瞻眼光的。
每一期都是一个独立的围合社区,也都有自己的大门入口,呆呆拍了三期的大门,这个大门入口的气势,比大部分豪宅入口都阔气。

(三期入口大门,实景图)
另外,融湖中心城的人气,从这里的商铺的满租都可以看出来,呆呆走了一圈,发现这些社区商铺完全没有空置,肯德基、真功夫、海王星辰、美宜佳这些连锁店都可以在这里看到。

(社区商铺引入了肯德基,实景图)
除了社区商铺,四期建面约6万平的集中式商业,今年四季度会开业,目前招商就已经达到60%,为盛优选超市华南首店、中影Max巨幕4D影城、琦乐幻想主题乐园、星巴克、麦当劳、奈雪的茶、瑞幸咖啡等常见的连锁品牌商家已纷纷签约。

(四期商业效果图)
如果觉得这些商业还不够,毗邻融湖中心城的,还有万达广场、平湖天虹、华南城奥特莱斯等商圈。

(万达广场64米长的天梯,图来自网络)
一位三年前在平湖买了房子的年轻人告诉呆呆,自己在平湖上班,住到这里后,发现平湖生活很舒适,公园、商场都不缺,大部分休闲娱乐活动都不需要去市区,感觉很好。
这也是融湖盛景花园业主未来的生活吧,吃喝玩乐都可以在社区范围内进行,就连孩子上学,也可以12年不离开社区。现在社区内有一所九年一贯制公立学校信德学校,信德学校2014年已经开学,去年的中考成绩在平湖位居前列,这里业主的孩子,出小区大门走几分钟就可以送孩子去上学,属于幸福的距离。

(信德学校,效果图)
据悉,这个学校目前还在扩建,未来还能提供更多的优质学位。此外,这个百万大盘,为了业主更好的安居乐业,小区内在1、3、5期都有自带幼儿园,目前1、3期的幼儿园都已经开学。

月均还款2303元
(利率公积金3.25%,商业性4.90%)
备注:以等额本息计算结果,数据仅供参考